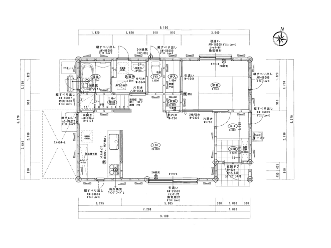
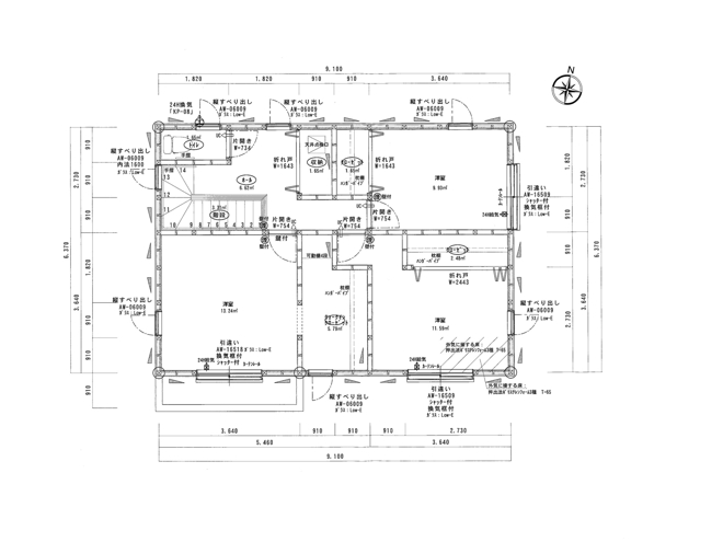
物件詳細情報
志摩市-オール電化住宅で室内は綺麗に保たれており、生活のしやすい立地です。-Code:ko-7542
| 所在地 | 志摩市阿児町神明 |
|---|---|
| 交通 | 近鉄「鵜方」駅約1.9km |
| 土地面積 | 236.76㎡(71.61坪) |
| 建物面積 | 114.27㎡(34.56坪) |
| 価格 | 2,300万円 |
| 種別 | 売物件 | 最寄駅/施設 | 近鉄「志摩神明」停約900m | 種類 | 居宅 | 構造 | 木造2階建 | 間取り | 4LDK | 築年月 | 平成26年11月 | 床面積 | 1階56.31㎡(17.03坪) 2階57.96㎡(17.53坪) | 都市計画 | 区域内 非線引 | 建ぺい/容積 | 60%/200% | 現況 | 利用中 | 用途地域 | 無指定 | 地目 | 宅地 | 地勢 | 平坦・ゆるやかな傾斜 | 道路位置 | 北側・東側道路 | 敷地権利 | 所有権 | 私道負担 | 無 |
|---|
| 環境 | 静か 高台 | 小学校 | 神明小学校 | 中学校 | 文岡中学校 | 水道 | 公営水道 | 電気 | 中部電力 | トイレ | 公共下水道 | 排水 | 公共下水道 | 引き渡し日 | 相談 | 特記事項 | 自然公園法(普通地域) | 備考1 | 標高約12.7m(国土地理院参照) | 備考2 | 宅地造成等工事規制区域 | 備考3 | 参考:固定資産税87,800円/年 | 取引態様 | 仲介 | 最終更新日 | 2026/4/9 | 物件番号 | ko-7542 |
|---|

















