物件詳細情報
鳥羽市-太平洋を望める13部屋の居ぬきの旅館。-Code:ji-6020
| 所在地 | 鳥羽市国崎町字横山下 |
|---|---|
| 交通 | 近鉄「鳥羽」駅 約18㎞ |
| 土地面積 | 1929.37㎡(583.63坪) |
| 建物面積 | 512.17㎡(154.93坪) |
| 価格 | 2,000万円 |
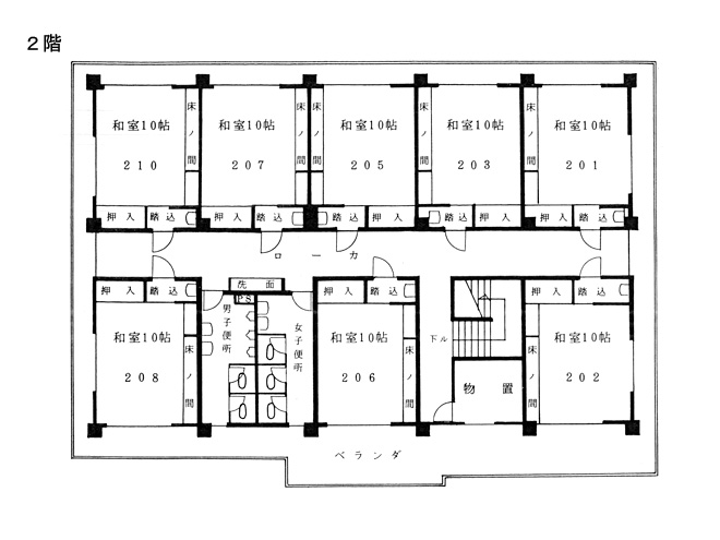
| 種別 | 売旅館 | 最寄駅/施設 | 近鉄「鳥羽」駅 約18㎞ | 種類 | 旅館 | 構造 | 鉄筋コンクリート造陸屋根2階建 | 間取り | - | 築年月 | 昭和54年10月 新築 | 床面積 | 1階260.17㎡/78.70坪 2階252.00㎡/76.23坪 | 都市計画 | 区域外 | 建ぺい/容積 | -%/-% | 現況 | 営業中 | 用途地域 | 無指定 | 地目 | 宅地 | 地勢 | 平坦 | 道路位置 | 北側道路幅員約5.5m | 敷地権利 | 所有権 | 私道負担 | 無し |
|---|
| 環境 | 静かです | 小学校 | -小学校 | 中学校 | -中学校 | 水道 | 公営水道 | ガス | プロパンガス | 電気 | 中部電力 | トイレ | 浄化槽 | 排水 | 側溝 | 引き渡し日 | 相談 | 引き渡し条件 | 現況 | 特記事項 | 自然公園法(普通地域) | 備考1 | 給湯器は灯油・重油を使用しています。 | 取引態様 | 仲介 | 最終更新日 | 2022/10/19 | 物件番号 | ji-6020 |
|---|
















