物件詳細情報
志摩市磯部町-的矢湾を見下ろすバルコニーのあるお部屋-Code:mn-2585
| 所在地 | 志摩市磯部町的矢 |
|---|---|
| 交通 | 近鉄「志摩磯部」駅約6.2km |
| 専有面積 | 77.24㎡(23.36坪) |
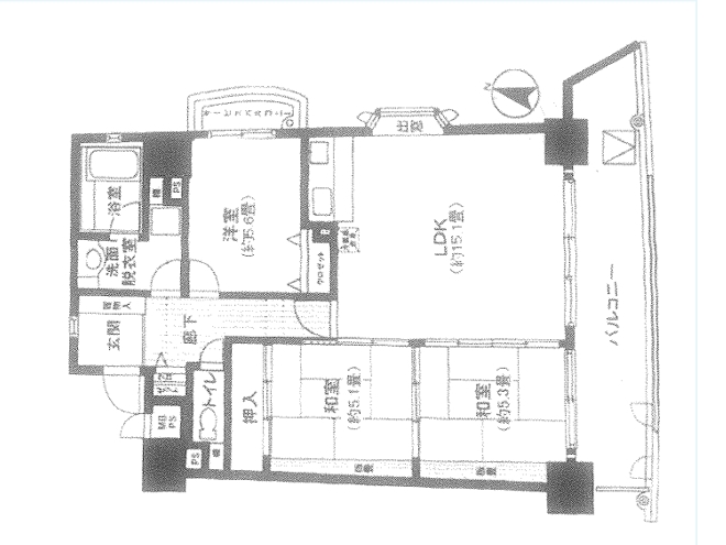
| 間取り | 3LDK |
| マンション名 | ロイヤルヴァンベール志摩的矢湾 |
| 価格 | 580万円 |
| 種別 | 売マンション | 最寄駅/施設 | 近鉄「志摩磯部」駅約6.2km | 種類 | 居宅 | 構造 | 鉄筋コンクリート造陸屋根14階建て6階部分 | 間取り | 3LDK | 築年月 | 平成9年10月 | 専有面積(内法) | 77.24㎡(23.36坪) | バルコニー面積 | 17.45㎡(5.27坪) | 都市計画 | 区域外 | 現況 | 利用中 | 総戸数 | 108戸 | 管理費 | 13,740円/月 | 現況 | 空家 | 修繕積立金 | 7,750円/月 | 道路位置 | 南側 県道、北側 私道 | 敷地権利 | 所有権 | 私道負担 | 無 |
|---|
| 環境 | 高台 | 小学校 | 鵜方小学校 | 中学校 | 文岡中学校 | 水道 | 私営水道 | ガス | 集中プロパン | 電気 | 中部電力 | トイレ | 集中浄化槽 | 排水 | 集中浄化槽 | 引き渡し日 | 相談 | 備考1 | 水道基本料金5,000円/月(8?まで。超過分は別途請求有) | 備考2 | 参考固定資産税:70,200円/年 | 備考3 | 標高約56.4m(国土地理院参照) | 備考4 | ペット不可 | 取引態様 | 仲介 | 最終更新日 | 2025/12/14 | 物件番号 | mn-2585 |
|---|










